Año construcción: 2005
Sup. Construida: 450 m2

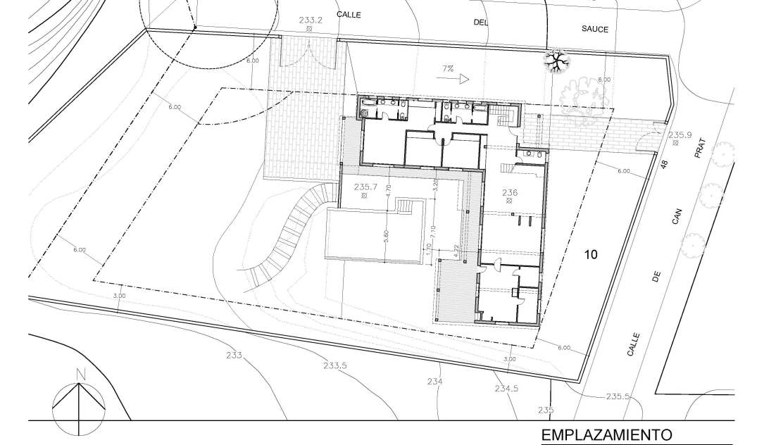
Se trata de una vivienda situada en una parcela esquinera con una ligera pendiente hacia el fondo de la parcela, donde todo el programa de la vivienda se sitúa en la planta baja, a excepción del estudio situado en un doble espacio junto con la sala de Estar-Comedor.

La vivienda, en forma de «L», donde los muros de piedra que conforman la fachada, con unas oberturas de medidas controladas cierran el espacio interior a las miradas de las dos calles.
Que esconde en su interior un jardín donde se ubica la piscina desbordante hacia donde se vuelcan todas las vistas de la vivienda y el porche de la cocina y de la sala de estar.
Es una vivienda de nueva construcción, pero a petición del cliente se ha construido a imagen y semejanza de una «masía» tradicional catalana.

Constructivamente a excepción del sótano y el primer forjado, realizados con muros de contención de hormigón armado y forjado unidireccional de hormigón, se ha realizado con los materiales de construcción de las antiguas masías.
Fachadas exteriores de piedra procedente del derribo de otras masías, forjados de vigas de madera, teja árabe recuperada, etc.
En resumen, una «masía tradicional catalana» con las ventajas de una construcción de nueva planta.