Año construcción: 2006
Sup. Construida: 240 m2
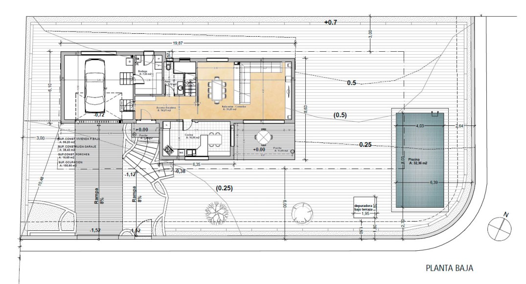
Se trata de una vivienda situada en una parcela sensiblemente plana, la vivienda se distribuye en planta baja con la zona de día y planta primera con la zona de noche.

La vivienda, de una proporción bastante alargada nos permite liberar una franja de parcela situada al Sureste y este, para la colocación del porche exterior y la zona de la piscina, que son una estancia más de la vivienda gran parte del año. Todas las estancias tienen vista a Sureste a excepción de baños, vestidores y hall escalera.